Set Appliance State:

Mains Power Off
Gas Off
CH Demand
Boiler Switch in ON position
WARNING! Mains voltage is expected during test, follow TOPs P4 live testing procedure
Mains Power On

Observation:

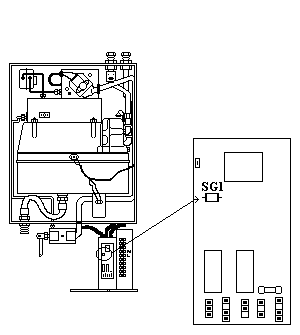
Is there a flashing visible across the Gas Discharge Tube SG1 on the PCB?